Jagiellońska 1/24 – 16.02.2026 r.
Prezydent Miasta Gliwice
ogłasza
w dniu 16.02.2026 r. o godz. 11.00 w Zakładzie Gospodarki Mieszkaniowej przy Placu Inwalidów Wojennych 3 (II piętro, pokój nr 4) rozpocznie się I ustny przetarg nieograniczony na sprzedaż lokalu mieszkalnego nr 24 usytuowanego w budynku przy ul. JAGIELLOŃSKIEJ 1
________________________________________
● FORMA ZBYCIA: Sprzedaż lokalu wraz ze sprzedażą ułamkowej części działki
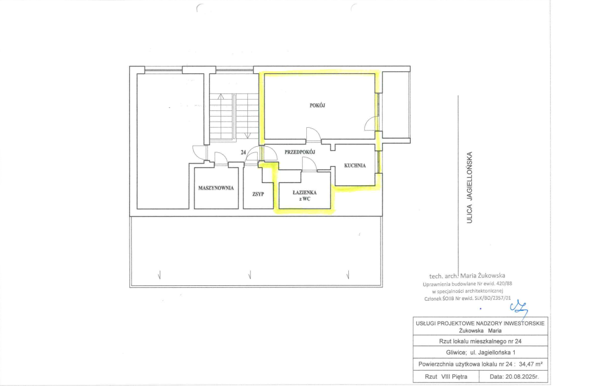
● POWIERZCHNIA LOKALU: 34,47 m²
● POWIERZCHNIA POMIESZCZENIA PRZYNALEŻNEGO – brak
● SKŁAD LOKALU: 1 pokój, kuchnia, łazienka z wc, przedpokój
● KONDYGNACJA: VIII piętro
● STAN TECHNICZNY LOKALU: lokal do generalnego remontu
● UDZIAŁ W NIERUCHOMOŚCI GRUNTOWEJ ORAZ CZĘŚCIACH WSPÓLNYCH NIERUCHOMOŚCI: 3/100
● NIERUCHOMOŚĆ GRUNTOWA: działka nr 279 o powierzchni 402 m², obręb Centrum, KW GL1G/00034261/1
● OBCIĄŻENIA: Nieruchomość jest wolna od obciążeń
● Dla części budynku zostało sporządzone świadectwo charakterystyki energetycznej. Wskaźniki rocznego zapotrzebowania wynoszą:
– na energię użytkową: EU = 99,07 kWh
– na energię końcową: EK = 125,26 kWh
– na nieodnawialną energię pierwotną: EP = 157,20 kWh
● W NIERUCHOMOŚCI FUNKCJONUJE WSPÓLNOTA MIESZKANIOWA
● Termin udostępnienia lokalu został wyznaczony na dzień 06.02.2026 r. W celu ustalenia dokładnej godziny z minutami – prosimy kontaktować się do dnia 03.02.2026 r. z ROM 2, ul. Zabrska 15, telefon: 32 339-29-82
● Przed przystąpieniem do przetargu uczestnik zobowiązany jest zapoznać się z przedmiotem przetargu oraz stanem faktycznym lokalu. Nabywca przejmuje lokal w stanie istniejącym
CENA WYWOŁAWCZA NIERUCHOMOŚCI: 203.900,00 zł
Wadium: 10.200,00 zł
Minimalne postąpienie: 2.040,00 zł
________________________________________
1. Warunkiem przystąpienia do przetargu jest:
a. wniesienie do 10.02.2026 r. wadium na konto ZGM w MILLENNIUM BANK 70 1160 2202 0000 0005 0719 0331 (decyduje data wpływu wadium na konto Zakładu). Tytuł wpłaty: (,,Przetarg – adres licytowanego lokalu, imię, nazwisko oraz PESEL osoby lub nazwa oraz NIP firmy, na rzecz której nieruchomość będzie nabywana”). Sposób określenia oferenta w tytule przelewu wadium jest wiążący,
b. okazanie na przetargu dowodu osobistego/paszportu przez uczestnika/uczestników przetargu,
c. przedłożenie pełnomocnictwa,
d. w przypadku, gdy uczestnikiem przetargu jest osoba prawna lub osoba fizyczna prowadząca działalność gospodarczą, a nieruchomość ma zostać nabyta w ramach prowadzonej działalności, należy okazać odpowiednio aktualny wydruk z Krajowego Rejestru Sądowego lub Centralnej Ewidencji i Informacji o Działalności Gospodarczej),
e. przedłożenie pełnomocnictwa wydanego w formie aktu notarialnego – w przypadku pełnomocnika osoby prawnej (chyba że pełnomocnictwo wynika wprost z innych dokumentów np. z wydruku z KRS),
f. stawienie się przed rozpoczęciem przetargu w celu weryfikacji powyższych dokumentów i podpisania listy obecności. Spóźnienie się na przetarg spowoduje wykluczenie z licytacji,
g. ponadto prosimy o przekazanie ze strony www.zgm-gliwice.pl : wypełnionego formularza elektronicznego znajdującego się w zakładce SPRZEDAŻ/ PRZETARGI/FORMULARZE-PRZETARG) wraz z kopią dowodu wpłaty wadium lub danych znajdujących się w formularzu mailem na adres przetargi@zgm.gliwice.eu lub złożenie w wersji papierowej do Biura Podawczego.
2. Osoby, które nie spełniają warunków punktu 1 a-f nie zostaną dopuszczone do udziału w licytacji.
3. Wpłacone wadium podlega:
– zaliczeniu na poczet ceny lokalu zaoferowanej przez oferenta który wygra przetarg,
– zwrotowi pozostałym oferentom, którzy przetargu nie wygrają,
– przepadkowi, jeżeli osoba która wygra przetarg, uchyli się do zawarcia umowy notarialnej w wyznaczonym terminie.
4. Osoba, która wygra przetarg, zobowiązana będzie do:
– zawarcia notarialnej umowy sprzedaży lokalu w terminie do 45 dni od daty przetargu. Warunkiem przystąpienia do zawarcia umowy notarialnej sprzedaży lokalu jest zaksięgowanie ceny sprzedaży nieruchomości na koncie ZGM w terminie poprzedzającym podpisanie aktu notarialnego,
– poniesienia ewentualnych kosztów notarialnych i sądowych związanych z nabyciem nieruchomości lokalowej oraz ustanowienia lub ujawnienia służebności.
5. Ogłoszenie, rzut lokalu i fotografie umieszczone są na stronie internetowej Zakładu Gospodarki Mieszkaniowej – www.zgm-gliwice.pl Dodatkowych informacji na temat warunków przetargu udziela Zakład Gospodarki Mieszkaniowej, tel. 32 338-39-53.
6. W przypadku wygrania przetargu przez cudzoziemca, w rozumieniu przepisów art. 1 ust. 2 ustawy z 24 marca 1920 r. o nabywaniu nieruchomości przez cudzoziemców (t.j. Dz.U. z 2017 r., poz. 2278), wymagane będzie przedłożenie, przed wyznaczonym terminem, aktu stosownego zezwolenia na nabycie nieruchomości – zgodnie z art. 1 ww. ustawy.
INFORMACJA SZCZEGÓŁOWA O OCHRONIE DANYCH OSOBOWYCH ZBIERANYCH PRZEZ ZAKŁAD GOSPODARKI MIESZKANIOWEJ W GLIWICACH W ZWIĄZKU Z REALIZACJĄ ZADAŃ USTAWOWYCH 1
1. Administratorem danych osobowych jest Zakład Gospodarki Mieszkaniowej w Gliwicach reprezentowany przez Dyrektora. W sprawach związanych z ochroną danych można kontaktować się z inspektorem ochrony danych korespondencją e-mail pod adresem: iod@zgm.gliwice.eu lub w formie pisemnej na adres Zakładu Gospodarki Mieszkaniowej (Pl. Inw. Wojennych 12, 44-100 Gliwice) wskazując formę w jakiej oczekują Państwo odpowiedzi i podając dane kontaktowe niezbędne do udzielenia odpowiedzi.
2. Współadministratorami danych osobowych są Miejskie Jednostki Organizacyjne Gminy Gliwice wymienione w Zarządzeniu organizacyjnym nr 84/19 Prezydenta Miasta Gliwice z dnia 12 sierpnia 2019r. w sprawie: zatwierdzenia uzgodnień dotyczących określenia zakresów odpowiedzialności współadministratorów wynikających z wypełniania obowiązków związanych z przetwarzaniem danych osobowych.
3. Dane osobowe są zbierane i przetwarzane w celu wypełnienia obowiązków i uprawnień wynikających z przepisów prawa, w związku z realizacją zadań wynikających ze statutu Zakładu Gospodarki Mieszkaniowej, w szczególności w celu: prowadzenia postępowania przetargowego na podstawie ustawy o gospodarce nieruchomościami, rozporządzenia w sprawie sposobu i trybu przeprowadzania przetargów oraz rokowań na zbycie nieruchomości, ustawy o własności lokali, oraz stosownych Uchwał RM w Gliwicach. Niepodanie danych lub podanie danych niepełnych może uniemożliwić załatwienie sprawy i wywołać skutki wynikające wprost z przepisów.
4. Dane osobowe wykorzystywane są również w celu:
• sprawniejszej komunikacji z klientami ZGM – podanie danych kontaktowych (numer telefonu, adres e-mail, adres do korespondencji) jest dobrowolne i podanie tych danych traktowane jest jak zgoda na ich wykorzystanie, a ich niepodanie nie niesie za sobą żadnych konsekwencji,
• zapewnienia dostępu do informacji o stanie załatwiania spraw, co wynika z art.6 ust.1 pkt 3) lit e) ustawy o dostępie do informacji publicznej,
Niepodanie danych lub podanie danych niepełnych może uniemożliwić załatwienie sprawy i wywołać skutki wynikające wprost z przepisów.
5. Każdej osobie, której dane są przetwarzane w Zakładzie Gospodarki Mieszkaniowej przysługuje prawo do żądania dostępu do treści swoich danych osobowych, sprostowania (poprawiania) ich lub ograniczenia ich przetwarzania, a także usunięcia (jeśli przetwarzanie odbywa się na podstawie zgody) lub wniesienia sprzeciwu wobec przetwarzania swoich danych osobowych. W przypadku danych osobowych zbieranych za zgodą można cofnąć zgodę, a wycofanie zgody nie ma wpływu na przetwarzanie danych osobowych
6. do momentu jej wycofania.
Przysługujące uprawnienia można realizować poprzez złożenie w Zakładzie Gospodarki Mieszkaniowej pisma w formie tradycyjnej opatrzonego podpisem lub wysłać korespondencję elektroniczną z wykorzystaniem pisma ogólnego na platformie SEKAP/ePUAP, potwierdzonego Profilem Zaufanym lub kwalifikowanym podpisem elektronicznym. W sytuacji gdy przepisy szczególne wprowadzać będą dodatkowe wymogi związane z realizacją wyżej wymienionych uprawnień – zostaniecie Państwo o tym poinformowani. Każda osoba, której dane dotyczą, ma również prawo do wniesienia skargi na przetwarzanie danych niezgodne z przepisami prawa, do organu nadzorczego jakim jest Prezes Urzędu Ochrony Danych Osobowych.
7. Dane osobowe mogą być przekazywane innym podmiotom upoważnionym na podstawie przepisów prawa, w tym innym jednostkom organizacyjnym w celu wykonywania zadań publicznych.
8. Dane osobowe będą przechowywane zgodnie z rozporządzeniem Prezesa Rady Ministrów w sprawie instrukcji kancelaryjnej, jednolitych rzeczowych wykazów akt oraz instrukcji w sprawie organizacji i zakresu działania archiwów zakładowych, a w szczególności Instrukcji w sprawie organizacji i zakresu działania składnicy akt ZGM, opracowanej na podstawie Ustawy z dnia 14 lipca 1983r. o narodowym zasobie archiwalnym i archiwach.
9. W Zakładzie Gospodarki Mieszkaniowej nie ma miejsca zautomatyzowane podejmowanie decyzji w indywidualnych przypadkach, w tym profilowanie.
1 Realizacja obowiązku informacyjnego w związku z wymaganiami Rozporządzenia Parlamentu Europejskiego i Rady (UE) 2016/679 z dnia 27 kwietnia 2016r. w sprawie ochrony osób fizycznych w związku z przetwarzaniem danych osobowych i w sprawie swobodnego przepływu takich danych oraz uchylenia dyrektywy 945/46/WE (ogólne rozporządzenie o ochronie danych)













